Wohnfläche
83.05 m²
Zimmer
3 ZKB, Balkon, WC, über 2 Etagen
Etage
2. OG - 3. OG
Fertigstellung
05/2026

Ihr neues Zuhause

WHG 24-4209

Inmitten der charmanten Innenstadt von Telgte, direkt um die historische Kornbrennerei, entsteht derzeit ein modernes und hochwertig konzipiertes Wohn- und Geschäftshaus, das städtisches Leben mit hohem Wohnkomfort und zukunftsweisender Technik vereint. Das Projekt umfasst insgesamt ca. 40 moderne Wohnungen, die sich auf mehrere Gebäudeteile verteilen. Die Wohneinheiten zeichnen sich durch durchdachte Grundrisse, lichtdurchflutete Räume und eine zeitgemäße Ausstattung aus – ideal für Singles, Paare, Familien und Senioren. Ergänzt wird das Wohnkonzept durch gewerbliche Flächen im Erdgeschoss, die Platz für Einzelhandel, Gastronomie oder Dienstleister bieten und so zur Belebung des Quartiers beitragen. Der Neubau ist barrierefrei geplant und verfügt über fünf separate Treppenhäuser, die jeweils mit einem komfortablen Aufzug ausgestattet sind. Dies ermöglicht einen bequemen Zugang zu allen Etagen – auch mit Kinderwagen oder Rollator. Es steht zudem eine geräumige Tiefgarage mit Stellplätzen zur Anmietung zur Verfügung, sodass das Auto sicher und wettergeschützt abgestellt werden kann. Das Gebäude wird energieeffizient nach aktuellen hohen Standards errichtet. Unter anderem sorgt ein umweltfreundliches Geothermie-Heizsystem für nachhaltige Wärme- und Kälteversorgung, was langfristig auch wirtschaftliche Vorteile für die Bewohner mit sich bringt. Die Fertigstellung der ersten Abschnitte ist für das 1. Quartal 2026 geplant. Bereits jetzt ist das Interesse groß – eine frühzeitige Kontaktaufnahme wird empfohlen.

Lagebeschreibung

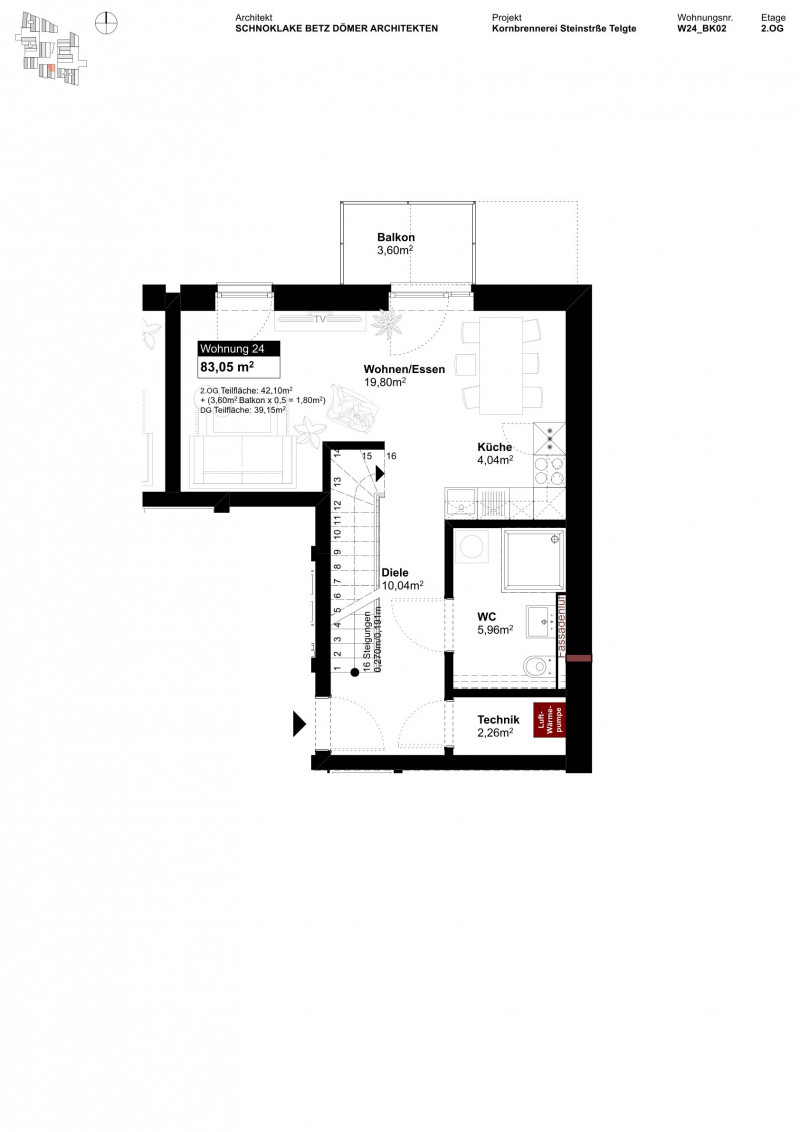
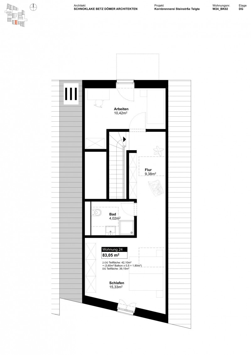
Diese Wohnung erstreckt sich über zwei Etagen (2. OG und 3. OG) des Wohngebäudes.

Einkaufsmöglichkeiten, Cafés, Restaurants, Schulen und Ärzte sind bequem erreichbar und bieten eine hervorragende Nahversorgung. Die Anbindung an den öffentlichen Nahverkehr ist optimal – der Bahnhof Telgte sowie Bushaltestellen erreichen Sie in nur wenigen Gehminuten.

Naturliebhaber profitieren von zahlreichen Radwegen und Erholungsgebieten entlang der Ems.

Raumangebot

Raum Fläche
Wohnen/Essen/Küche (untere Etage) 23.84 m²
Schlafen (obere Etage) 15.33 m²
Gäste-WC 5.96 m²
Diele 10.04 m²
Balkon 3.60 m²
Technik 2.26 m²
Flur (obere Etage) 9.38 m²
Arbeiten (obere Etage) 10.42 m²
Bad (obere Etage) 4.02 m²
Gesamtfläche 83.05 m²

Ausstattung

Ausstattung

  • großzügige, lichtdurchflutete Wohnung
  • elektrisch verstellbare Rolläden
  • Energieeffzienz-Bausweise
  • Wohnung über 2 Etagen

Außenbereich

  • Balkon mit Nord-Ausrichtung

Bad

  • Waschmaschinenanschluss im Bad
  • modernes Badezimmer mit ebenerdiger Dusche
  • Gäste-WC

Böden

  • hochwertiges Vinyl-Bodenbeläge in Holzoptik

Sonstiges

  • Tiefgaragenstellplatz (optional)
  • Personenaufzug
  • Video-Türsprechanalage
  • Kellerabteil
  • allgemeiner Fahrradabstellraum in TG

Heizung

  • moderne Niedrigtemperatur-Fußbodenheizung mit Kühlungsmöglichkeiten
  • Wärme- und Mieterstromerzeugung durch Geothermie

Küche

  • offener Küchenbereich ohne Einbauküche

Grundriss 1

Grundriss Wohnung 24

Grundriss 2

Grundriss Wohnung 24

Bildergalerie

Telate Quartier - Image 1

Telate Quartier - Image 1

Objektdaten

Objektart: Wohnung
Adresse: Königstraße 32
Ort: 48291 Telgte
Stockwerk: 2. OG - 3. OG
Aufzug: Ja
Balkon/Terrasse: Balkon

Preise

Miete: 1.100,00 €
Betriebskosten: 130,00 €
Heizkostenpauschale: 160,00 €
Parkplatz: 50,00 €

Lage

Königstraße 32, 48291 Telgte