Wohnfläche
63 m²
Zimmer
3
Etage
1
Fertigstellung
N/A

Objektbeschreibung

Diese schöne Wohnung zeichnet sich durch eine gehobene Innenausstattung aus und kann ab dem 01.06.2026 bezogen werden. In einem barrierefreiem Geothermie-Haus mit 7 Wohneinheiten, liegt diese Wohnung im 1. Obergeschoss und ist über einen Aufzug erreichbar.

Ausstattung

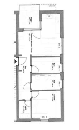
Die Wohnung ist wie folgt aufgeteilt: Wohn- und Esszimmer inkl. Küchenbereich mit Zugang zur Loggia Bad mit Dusche Arbeits-/Kinderzimmer Schlafzimmer Hauswirtschafts-/Abstellraum Zur Wohnung gehört ein Stellplatz (50,- € Miete/Monat) für Ihr Auto, was Ihnen bequemes Parken ohne lästiges Suchen garantiert. Ebenso steht Ihnen ein Kellerraum zur Verfügung.

Lage

Das Objekt liegt in Telgte. In Laufnähe der Immobilie sind mehrere Buslinien vorhanden. Überregionale Ziele sind durch die nahe verkehrende Bahnlinie RB67 gut erreichbar. In näherer Umgebung finden Sie einige Ärzte, Restaurants, Cafés, Supermärkte und Bäckereien. Auch verschiedene Modegeschäfte, Fitnessstudios, Grün- und Parkanlagen, eine Buchhandlung und eine Bibliothek sind fußläufig gut zu erreichen. Weiter entfernt finden Sie zudem mehrere Kindergärten.

Umgebungskarte ansehen

Sonstige Angaben

Haben wir Ihr Interesse geweckt? Dann vereinbaren Sie noch heute einen Besichtigungstermin mit uns. Bei weiteren Fragen stehen wir Ihnen gerne zur Verfügung.

Raumangebot

Raum Fläche
Fläche 63.00 m²
Gesamtfläche 63 m²

Ausstattung

Heizung

  • Wärmepumpe

Zustand

  • Zustand: Gepflegt

Ausstattung

  • Ausstattungsqualität: Gehoben

Energie

  • Energieausweis vorhanden

Grundriss 1

Grundriss

Bildergalerie

Telgte // Schöne großzügige 3 ZKB-Wohnung (101)
Telgte // Schöne großzügige 3 ZKB-Wohnung (101)

Objektdaten

Objektart: apartment
Adresse: Deutschland, 48291 Telgte, Mönkediek 2a
Ort: 48291 Telgte
Stockwerk: 1
Aufzug: Nein

Preise

Miete: 875,00 €
Betriebskosten: 170,00 €
Heizkostenpauschale: 65,00 €

Lage

Deutschland, 48291 Telgte, Mönkediek 2a, 48291 Telgte