Wohnfläche
70 m²
Zimmer
2
Etage
3
Fertigstellung
N/A

Objektbeschreibung

Diese schöne helle 2-ZKB-Wohnung liegt im 3.OG eines Wohn- und Geschäftshauses. Der Innenstadtbereich ist leicht fußläufig zu erreichen. So befinden sich Einkaufsmöglichkeiten, Ärzte und Schulen in unmittelbarer Nähe.

Ausstattung

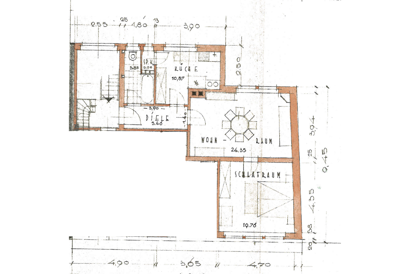
Die Wohnung ist aufgeteilt in ein Wohnzimmer, Schlafzimmer, Badezimmer mit Wanne, Küche und angrenzendem Abstellraum. Die großen Fenster lassen die Räume hell und freundlich erscheinen. Dies wird noch verstärkt durch das holzfarbene Parkett im Wohn- und Schlafzimmer sowie im Flur. Im Badezimmer wurde PVC-Designbelag in Steinoptik verlegt; die Küche ist gefliest.

Lage

Wattenscheid liegt mitten im Ruhrgebiet - im Westen von Bochum; und ist mit der kreisfreien Stadt Bochum zusammengeschlossen. Im Westen grenzt Wattenscheid an Gelsenkirchen und Essen, im Norden an Herne. Wattenscheid hat Anschluss an den Ruhrschnellweg, die A 40. In der direkten Nachbarschaft der Autobahnabfahrt Wattenscheid befindet sich an der Ruhrgebietsstrecke der Bahnhof Wattenscheid. Obwohl im Bahnhof nur der Nahverkehr hält, ist er durch seine verkehrsgünstige Lage unmittelbar an der A 40 ein bedeutender Park-and-ride-Bahnhof im Verkehrsverbund Rhein-Ruhr.

Umgebungskarte ansehen

Sonstige Angaben

Haben wir Ihr Interesse geweckt? Dann vereinbaren Sie noch heute einen Besichtigungstermin mit uns. Bei weiteren Fragen stehen wir Ihnen gerne zur Verfügung.

Raumangebot

Raum Fläche
Fläche 70.00 m²
Gesamtfläche 70 m²

Ausstattung

Heizung

  • Zentralheizung

Zustand

  • Zustand: Gepflegt

Ausstattung

  • Ausstattungsqualität: Normal

Grundriss 1

Grundriss

Bildergalerie

Bochum-Wattenscheid// Schöne helle 2 ZKB-Wohnung (301) zu vermieten
Bochum-Wattenscheid// Schöne helle 2 ZKB-Wohnung (301) zu vermieten
Bochum-Wattenscheid// Schöne helle 2 ZKB-Wohnung (301) zu vermieten
Bochum-Wattenscheid// Schöne helle 2 ZKB-Wohnung (301) zu vermieten
Bochum-Wattenscheid// Schöne helle 2 ZKB-Wohnung (301) zu vermieten
Bochum-Wattenscheid// Schöne helle 2 ZKB-Wohnung (301) zu vermieten
Bochum-Wattenscheid// Schöne helle 2 ZKB-Wohnung (301) zu vermieten
Bochum-Wattenscheid// Schöne helle 2 ZKB-Wohnung (301) zu vermieten
Bochum-Wattenscheid// Schöne helle 2 ZKB-Wohnung (301) zu vermieten
Bochum-Wattenscheid// Schöne helle 2 ZKB-Wohnung (301) zu vermieten
Bochum-Wattenscheid// Schöne helle 2 ZKB-Wohnung (301) zu vermieten

Objektdaten

Objektart: apartment
Adresse: Hochstraße 6
Ort: 44866 Bochum
Stockwerk: 3
Aufzug: Nein

Preise

Miete: 560,00 €
Betriebskosten: 90,00 €
Heizkostenpauschale: 110,00 €

Lage

Hochstraße 6, 44866 Bochum