Wohnfläche
116 m²
Zimmer
3
Etage
1
Fertigstellung
03/2026

Objektbeschreibung

Schöne große 3-Zimmer-Wohnung im 1. OG eines Wohn- und Geschäftshaus. Die ehemaligen Bürofläche wurde zu einer Wohnung umgebaut.

Ausstattung

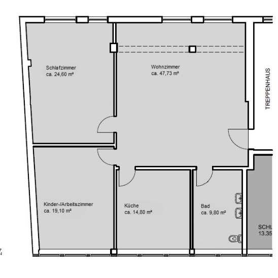
Wenn man die Wohnung betritt, steht man direkt im schönen großen Wohnzimmer, von hier aus kann man alle anderen Räume betreten. Der Boden in den Wohn- und Schlafräumen ist mit Laminat ausgelegt. Die Fenster wurden komplett erneuert. Die Wohnfläche teilt sich auf in 1 Wohnzimmer, 2 Schlafzimmer, Küche und ein komplett renoviertes Badezimmer mit 2 Waschbecken und Dusche.

Lage

Das Objekt liegt an einer kleineren Straße in der Nähe der Fußgängerzone.

Umgebungskarte ansehen

Sonstige Angaben

Haben wir Ihr Interesse geweckt, dann vereinbaren Sie einen Besichtigungstermin. Für Fragen stehen wir Ihnen gerne zur Verfügung.

Raumangebot

Raum Fläche
Fläche 116.00 m²
Gesamtfläche 116 m²

Ausstattung

Heizung

  • Zentralheizung

Zustand

  • Zustand: Gepflegt

Ausstattung

  • Ausstattungsqualität: Normal

Energie

  • Energieausweis vorhanden (Bedarf: 180,30 kWh/(m²*a))

Grundriss 1

Grundriss

Bildergalerie

Bad Gandersheim // Großzügige 3 Zimmer-Wohnung (102) zu vermieten
Bad Gandersheim // Großzügige 3 Zimmer-Wohnung (102) zu vermieten
Bad Gandersheim // Großzügige 3 Zimmer-Wohnung (102) zu vermieten
Bad Gandersheim // Großzügige 3 Zimmer-Wohnung (102) zu vermieten
Bad Gandersheim // Großzügige 3 Zimmer-Wohnung (102) zu vermieten
Bad Gandersheim // Großzügige 3 Zimmer-Wohnung (102) zu vermieten
Bad Gandersheim // Großzügige 3 Zimmer-Wohnung (102) zu vermieten

Objektdaten

Objektart: apartment
Adresse: Steinweg 36-37
Ort: 37581 Bad Gandersheim
Stockwerk: 1
Aufzug: Nein

Preise

Miete: 500,00 €
Betriebskosten: 140,00 €
Heizkostenpauschale: 260,00 €

Lage

Steinweg 36-37, 37581 Bad Gandersheim